5047 W Hummingbird DR ,Residential, Pt Labelle Unit 3 для продажи & аренды
5047 W Hummingbird DR для продажи & аренды




Цена $33,350.00
- Размер территории 0
- Год постройки
- Вид на воду
- Zip 33935
- Стиль
- Парковка
- Бассейн Yes
- Статус Active
Описание
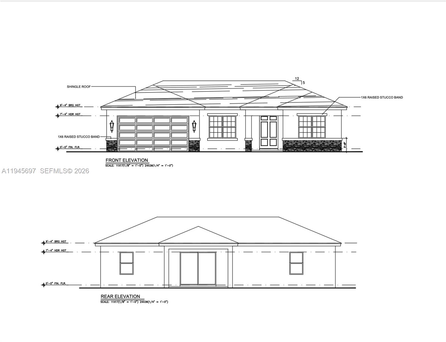
Unique opportunity to begin construction right away with no entitlement delays or unnecessary holding costs. Three adjacent lots located in the fast-growing Port LaBelle area offer strong resale potential and an efficient build setup ideal for builders and investors. Each lot is fully entitled and ready to go, including an approved building permit, impact fees already waived (approximately $7,000 in savings), approved septic permit, paid waste agreements, and completed survey, site plan, and architectural plans. The approved home plan features 1,305 square feet of living space with 3 bedrooms, 2 bathrooms, a 2-car garage, and a covered lanai. Vaulted ceilings in the main living area create an open, light-filled layout. A rear easement adds separation and privacy from neighboring properties. The seller can also construct the home using the approved plans, providing a streamlined turnkey construction option. Based on recent comparable new construction, the completed home would be competitively priced under $295,000 while still supporting a profitable project. Subcontractor contacts, construction budgets, and lender referrals are available for qualified buyers. All permits and approvals can be transferred into the buyer?s name at closing.
PORT LABELLE UNIT 3 TR L 3 BLK 2102
No Misc/Improvements
Unique opportunity to begin construction right away with no entitlement delays or unnecessary holding costs. Three adjacent lots located in the fast-growing Port LaBelle area offer strong resale potential and an efficient build setup ideal for builders and investors. Each lot is fully entitled and ready to go, including an approved building permit, impact fees already waived (approximately $7,000 in savings), approved septic permit, paid waste agreements, and completed survey, site plan, and architectural plans. The approved home plan features 1,305 square feet of living space with 3 bedrooms, 2 bathrooms, a 2-car garage, and a covered lanai. Vaulted ceilings in the main living area create an open, light-filled layout. A rear easement adds separation and privacy from neighboring properties. The seller can also construct the home using the approved plans, providing a streamlined turnkey construction option. Based on recent comparable new construction, the completed home would be competitively priced under $295,000 while still supporting a profitable project. Subcontractor contacts, construction budgets, and lender referrals are available for qualified buyers. All permits and approvals can be transferred into the buyer?s name at closing.
City:La Belle,List A O R:A-Miami Association of REALTORS,Tax Year:2025,Latitude:26.736275,List Price:33350,Listing Id:A11945697,Longitude:-81.39943,Mls Status:Active,Current Use:1:Other Usage,Directions:S Peachtree Cir, head north on S Peachtree Cir toward W Hummingbird Dr. Turn left onto W Hummingbird Dr. Continue straight ? 5047 W Hummingbird Dr will be on your right,Postal Code:33935,Street Name:W Hummingbird DR,Coordinates:1:26.736275,Photos Count:4,Building Name:PT LaBELLE UNIT 3,Days On Market:29,Listing Terms:1:Owner Will Carry,Lot Size Acres:0.23,Lot Size Units:Square Feet,M I A M I R E_ Area:5940 Florida Other,M L S Area Major:Pt Labelle Unit 3,On Market Date:2026-01-14,Parcel Number:-,Property Type:Land/Boat Docks,Street Number:5047,Public Remarks:Unique opportunity to begin construction right away with no entitlement delays or unnecessary holding costs. Three adjacent lots located in the fast-growing Port LaBelle area offer strong resale potential and an efficient build setup ideal for builders and investors. Each lot is fully entitled and ready to go, including an approved building permit, impact fees already waived (approximately $7,000 in savings), approved septic permit, paid waste agreements, and completed survey, site plan, and architectural plans. The approved home plan features 1,305 square feet of living space with 3 bedrooms, 2 bathrooms, a 2-car garage, and a covered lanai. Vaulted ceilings in the main living area create an open, light-filled layout. A rear easement adds separation and privacy from neighboring properties. The seller can also construct the home using the approved plans, providing a streamlined turnkey construction option. Based on recent comparable new construction, the completed home would be competitively priced under $295,000 while still supporting a profitable project. Subcontractor contacts, construction budgets, and lender referrals are available for qualified buyers. All permits and approvals can be transferred into the buyer?s name at closing.,County Or Parish:Hendry County,Direction Faces:Southeast,Expiration Date:2026-03-31,List Office Name:Knowledge Base Real Estate,Standard Status:Active,Living Area Units:Square Feet,Major Change Type:Price Decrease,Property Sub Type:Residential,State Or Province:FL,Subdivision Name:PT LaBELLE UNIT 3,Unparsed Address:5047 W Hummingbird DR, La Belle FL 33935,Listing Agreement:Exclusive Right To Sell,Building Area Units:Square Feet,Leasable Area Units:Square Feet,Lot Size Dimensions:80x125,Original List Price:33500,Previous List Price:33500,Public Survey Range:43,I D X Participation Y N:1,M I A M I R E_ N A R Rules Y N:1,Syndication Remarks:Unique opportunity to begin construction right away with no entitlement delays or unnecessary holding costs. Three adjacent lots located in the fast-growing Port LaBelle area offer strong resale potential and an efficient build setup ideal for builders and investors. Each lot is fully entitled and ready to go, including an approved building permit, impact fees already waived (approximately $7,000 in savings), approved septic permit, paid waste agreements, and completed survey, site plan, and architectural plans. The approved home plan features 1,305 square feet of living space with 3 bedrooms, 2 bathrooms, a 2-car garage, and a covered lanai. Vaulted ceilings in the main living area create an open, light-filled layout. A rear easement adds separation and privacy from neighboring properties. The seller can also construct the home using the approved plans, providing a streamlined turnkey construction option. Based on recent comparable new construction, the completed home would be competitively priced under $295,000 while still supporting a profitable project. Subcontractor contacts, construction budgets, and lender referrals are available for qualified buyers. All permits and approvals can be transferred into the buyer?s name at closing.,Listing Contract Date:2026-01-14,Originating System I D:miamire,Public Survey Section:10,Showing Instructions:See Broker Remarks,Street Number Numeric:5047,Tax Legal Description:PORT LABELLE UNIT 3 TR L 3 BLK 2102,M I A M I R E_ Current Price:33350,Public Survey Township:43,M I A M I R E_ Municipal Code:29,Originating System Name:Miami Association of REALTORS?,M I A M I R E_ Geographic Area:Other Geographic Area (Out Of Area Only),M I A M I R E_ Internet Remarks:-,M I A M I R E_ Parcel Number M L X:-,M I A M I R E_ Street View Param:1$26.736279$-81.399441$356.51$13.33$1.00$cz2MzB8G_eOFu-UhxmLtyA,M I A M I R E_ Supplement Count:4,Contract Status Change Date:2026-01-14,Internet Address Display Y N:1,M I A M I R E_ Ok To Advertise List:No,M I A M I R E_ Subdivision Number:3,M I A M I R E_ Agent Alternate Phone:239-579-7912,Internet Entire Listing Display Y N:1,M I A M I R E_ Address Internet Display:5047 W Hummingbird DR,
- Цена $33,350.00
- Цена изменилась: 2026-02-12
- Размер территории кв.футов
- Цена за кв.фут $
- Год постройки
- Вид на воду
- Вид
- Бассейн Yes
- Стиль
- Cтроительство
- Парковка
- Тип настила
- Тип объекта Land/Boat Docks
- Статус Active
- Опубликовано 2026-02-12
- Активен в листинге (дней) 41
- Меблированный
- City La Belle
- Zip 33935
- State Florida
- Subdivision
- Development Name PT LaBELLE UNIT 3
- HOA Fees
- Taxes 0
- Taxes Year 2025
En
Ru
Es