2146 7th St ,Bryandale для продажи & аренды
2146 7th St для продажи & аренды






Цена $829,000.00
- Размер территории 6300
- Год постройки
- Вид на воду
- Zip 33135
- Стиль
- Парковка
- Бассейн Yes
- Статус Active
Описание
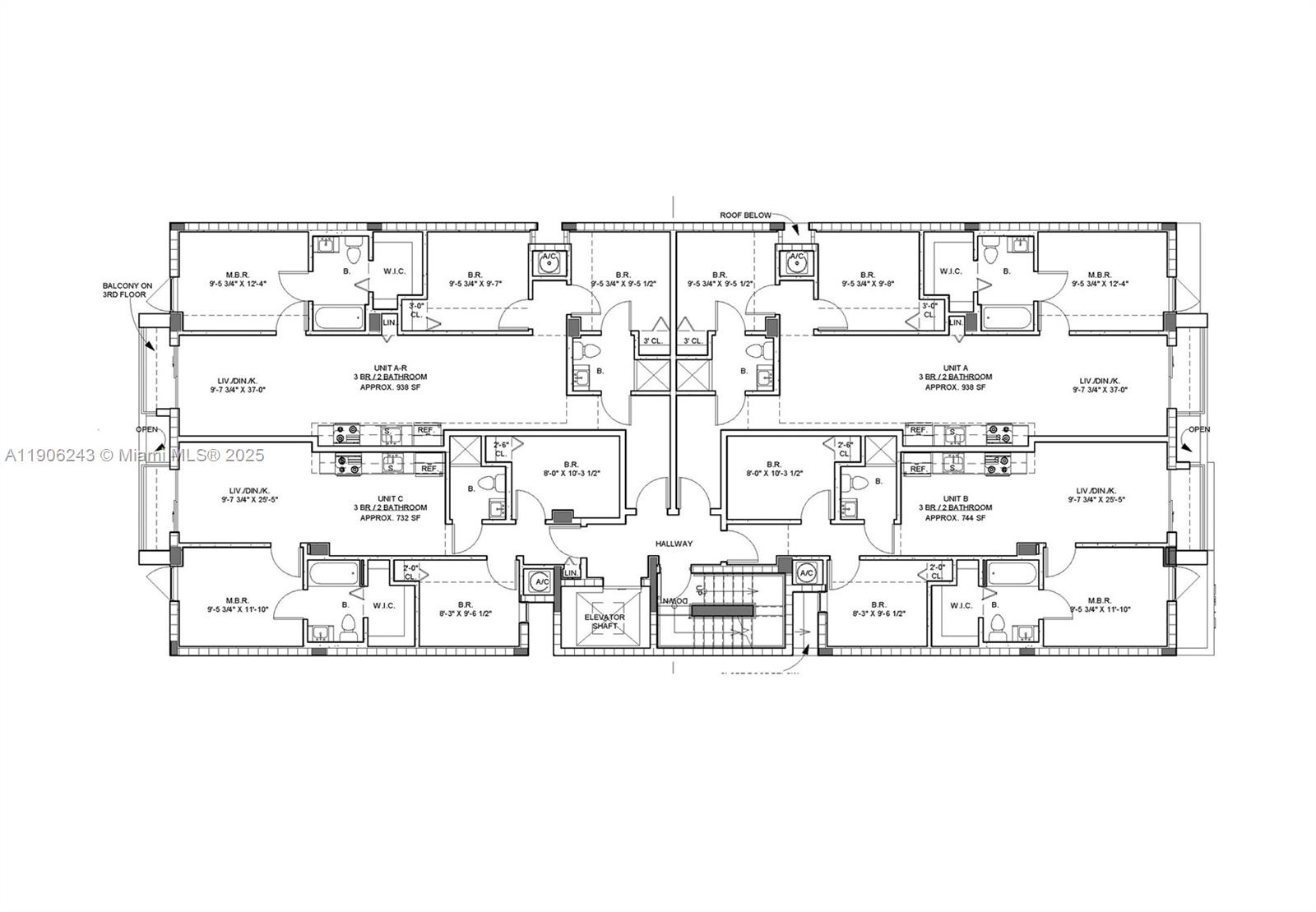
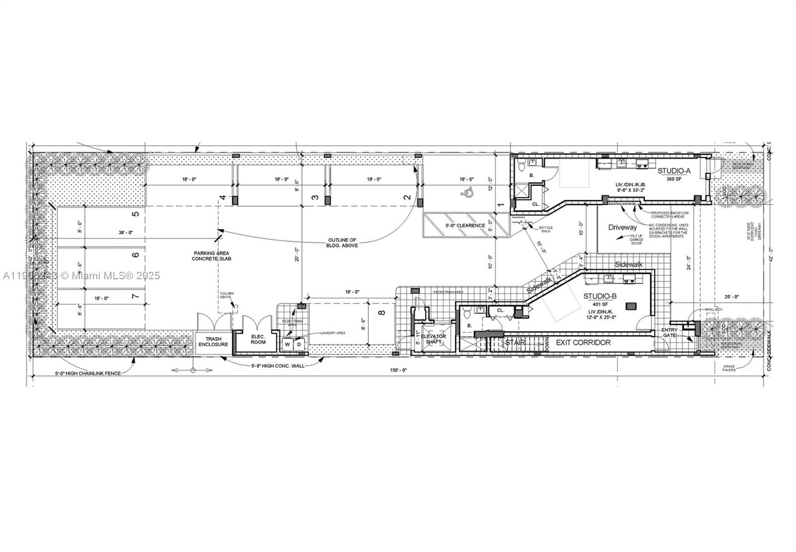
Prime investment opportunity in Miami’s East Little Havana redevelopment corridor, just minutes from Brickell, Coral Gables, and the Miami River District. Plans already designed for a 10-unit multifamily building (eight 3-bedroom units and two studios) on a 6,300 SF lot with an existing single-family home. Surrounded by new residential developments and strong rental demand, this site offers outstanding potential for developers or investors seeking growth in one of Miami’s fastest-evolving urban zones.
BRYANDALE PB 9-86 LOT 23 BLK 1 & N1/2 OF ALLEY LYG S & ADJ CLOSED PER ORD 13492 LOT SIZE 6300 SQ FT M/L COC 22179-2699 03 2004 1
City Location, Less Than 1 Acre
Prime investment opportunity in Miami’s East Little Havana redevelopment corridor, just minutes from Brickell, Coral Gables, and the Miami River District. Plans already designed for a 10-unit multifamily building (eight 3-bedroom units and two studios) on a 6,300 SF lot with an existing single-family home. Surrounded by new residential developments and strong rental demand, this site offers outstanding potential for developers or investors seeking growth in one of Miami’s fastest-evolving urban zones.
City:Miami,Zoning:3901,List A O R:A-Miami Association of REALTORS,Tax Year:2025,Latitude:25.7661596,List Price:829000,Listing Id:A11906243,Longitude:-80.2301491,Mls Status:Active,Utilities:1:Sewer Connected,2:Water Connected,3:Electricity Available,4:Sewer Available,5:Water Available,Current Use:1:Unimproved Multi Family (5+Units),Postal Code:33135,Street Name:7th St,Coordinates:1:25.7661596,Lot Features:1:Less Than 1 Acre,Photos Count:6,Building Name:BRYANDALE,Days On Market:9,Lot Size Acres:0.145,Lot Size Units:Square Feet,M I A M I R E_ Area:41,M L S Area Major:Bryandale,On Market Date:2025-10-31,Parcel Number:01-41-03-020-0080,Property Type:Commercial Land,Street Number:2146,Public Remarks:Prime investment opportunity in Miami’s East Little Havana redevelopment corridor, just minutes from Brickell, Coral Gables, and the Miami River District. Plans already designed for a 10-unit multifamily building (eight 3-bedroom units and two studios) on a 6,300 SF lot with an existing single-family home. Surrounded by new residential developments and strong rental demand, this site offers outstanding potential for developers or investors seeking growth in one of Miami’s fastest-evolving urban zones.,County Or Parish:Miami-Dade County,Expiration Date:2026-04-30,Frontage Length:42,List Office Name:Capital Nest Realty, LLC,Standard Status:Active,Living Area Units:Square Feet,Major Change Type:Price Increase,Postal Code Plus4:3314,State Or Province:FL,Street Dir Prefix:SW,Subdivision Name:BRYANDALE,Tax Annual Amount:8728,Unparsed Address:2146 SW 7th St, Miami FL 33135,Listing Agreement:Exclusive Right To Sell,Road Frontage Type:1:City/County Maintained,Building Area Units:Square Feet,Leasable Area Units:Square Feet,Lot Size Dimensions:42x150,Lot Size Square Feet:6300,M I A M I R E_ Flood Zone:X,M I A M I R E_ L P Amt Sq Ft:131.5873,Original List Price:780000,Previous List Price:780000,Public Survey Range:41,I D X Participation Y N:1,M I A M I R E_ N A R Rules Y N:1,Showing Contact Type:1:Call Listing Office,Syndication Remarks:Prime investment opportunity in Miami’s East Little Havana redevelopment corridor, just minutes from Brickell, Coral Gables, and the Miami River District. Plans already designed for a 10-unit multifamily building (eight 3-bedroom units and two studios) on a 6,300 SF lot with an existing single-family home. Surrounded by new residential developments and strong rental demand, this site offers outstanding potential for developers or investors seeking growth in one of Miami’s fastest-evolving urban zones.,Listing Contract Date:2025-10-31,Originating System I D:miamire,Public Survey Section:3,Showing Instructions:Call Listing Agent,Call Listing Office,Street Number Numeric:2146,Tax Legal Description:BRYANDALE PB 9-86 LOT 23 BLK 1 & N1/2 OF ALLEY LYG S & ADJ CLOSED PER ORD 13492 LOT SIZE 6300 SQ FT M/L COC 22179-2699 03 2004 1,Gross Scheduled Income:32000,M I A M I R E_ Current Price:829000,M I A M I R E_ Jurisdiction:City,Public Survey Township:41,M I A M I R E_ Municipal Code:1,M I A M I R E_ Total Mortgage:180000,Originating System Name:Miami Association of REALTORS®,M I A M I R E_ Internet Remarks:Plans designed for 10-unit multifamily (8 three-bed, 2 studios) in Miami’s East Little Havana near Brickell—prime ready-to-build investment site.,M I A M I R E_ Parcel Number M L X:0080,M I A M I R E_ Showing Time Flag:1,M I A M I R E_ Street View Param:1$25.76637334326657$-80.23014120751536$180.60$7.17$1.00$,Contract Status Change Date:2025-10-31,Internet Address Display Y N:1,Internet Consumer Comment Y N:1,M I A M I R E_ Ok To Advertise List:No,M I A M I R E_ Subdivision Number:20,M I A M I R E_ Environmental Audit:None,M I A M I R E_ Agent Alternate Phone:305-285-8801,M I A M I R E_ Inc Exp Statement Period:2004,Internet Entire Listing Display Y N:1,M I A M I R E_ Address Internet Display:2146 SW 7th St,Internet Automated Valuation Display Y N:1,
- Цена $829,000.00
- Цена изменилась: 2025-11-07
- Размер территории кв.футов
- Цена за кв.фут $
- Год постройки
- Вид на воду
- Вид
- Бассейн Yes
- Стиль
- Cтроительство
- Парковка
- Тип настила
- Тип объекта Commercial Land
- Статус Active
- Опубликовано 2025-11-07
- Активен в листинге (дней) 179
- Меблированный
- City Miami
- Zip 33135
- State Florida
- Subdivision
- Development Name BRYANDALE
- HOA Fees
- Taxes 8728
- Taxes Year 2025
En
Ru
Es