3 Nw St ,Residential, Sun Gardens First Add для продажи & аренды
3 Nw St для продажи & аренды





Цена $155,000.00
- Размер территории 6262
- Год постройки
- Вид на воду
- Zip 33004
- Стиль
- Парковка
- Бассейн Yes
- Статус Active With Contract
Описание
CORNER Vacant Land on the best location of Dania Beach. 6262 Square Feet Ready to Build Your Dream House. Walking Distance to all the New Neighboring Developments which include the 102-acre premier mixed-use Dania Pointe with 1 million square feet retail stores and restaurants. Close to I-95, the Ft Lauderdale Airport and the Everglades Cruise Port. Do not miss this opportunity. Driving Directions: To access, put on the GPS this address: 280 NW 14th Way, Dania Beach FL 33004. The vacant lot is just behind this property. Clear Vacant Lot. Area in full expansion! See all pictures.Public utilities appear to be in the area; buyer to verify availability, setbacks, flood zone, and impact fees with the City of Dania Beach.
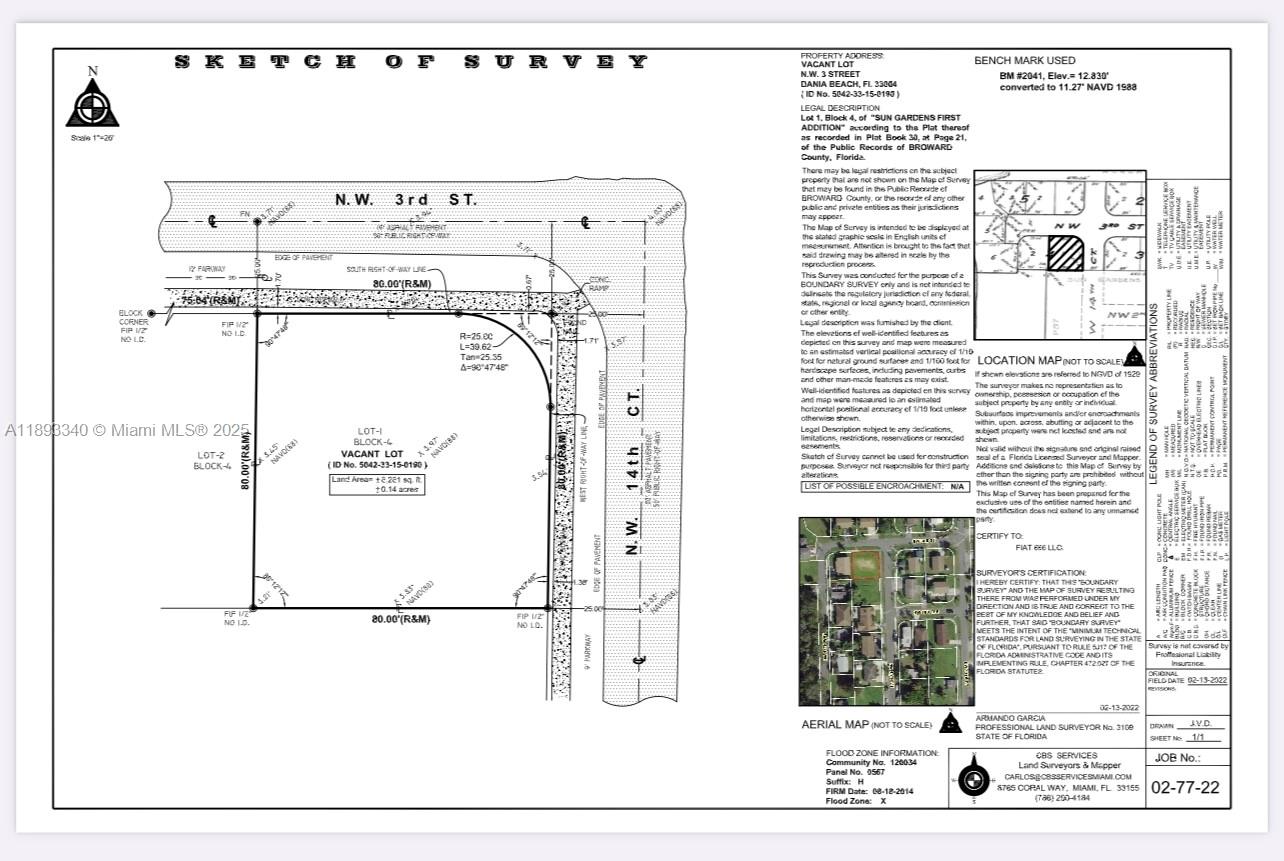
SUN GARDENS FIRST ADD 30-21 B LOT 1 BLK 4
Corner Location, Less Than 1/4 Acre Lot, Cleared
CORNER Vacant Land on the best location of Dania Beach. 6262 Square Feet Ready to Build Your Dream House. Walking Distance to all the New Neighboring Developments which include the 102-acre premier mixed-use Dania Pointe with 1 million square feet retail stores and restaurants. Close to I-95, the Ft Lauderdale Airport and the Everglades Cruise Port. Do not miss this opportunity. Driving Directions: To access, put on the GPS this address: 280 NW 14th Way, Dania Beach FL 33004. The vacant lot is just behind this property. Clear Vacant Lot. Area in full expansion! See all pictures.Public utilities appear to be in the area; buyer to verify availability, setbacks, flood zone, and impact fees with the City of Dania Beach.
City:Dania Beach,Zoning:NBHD-RES,List A O R:A-Miami Association of REALTORS,Tax Year:2024,Latitude:26.0517448,List Price:155000,Listing Id:A11893340,Longitude:-80.1372757,Mls Status:Active With Contract,Current Use:1:Unused,Postal Code:33004,Street Name:Nw St,Contingency:3rd Party Approval,Coordinates:1:26.0517448,Lot Features:1:Less Than 1/4 Acre Lot,2:Cleared,Photos Count:5,Building Name:SUN GARDENS FIRST ADD,Days On Market:3,Lot Size Acres:0.14,Lot Size Units:Square Feet,M I A M I R E_ Area:3020,M L S Area Major:Sun Gardens First Add,On Market Date:2025-10-09,Parcel Number:504233150190,Property Type:Land/Boat Docks,Street Number:3,Public Remarks:CORNER Vacant Land on the best location of Dania Beach. 6262 Square Feet Ready to Build Your Dream House. Walking Distance to all the New Neighboring Developments which include the 102-acre premier mixed-use Dania Pointe with 1 million square feet retail stores and restaurants. Close to I-95, the Ft Lauderdale Airport and the Everglades Cruise Port. Do not miss this opportunity. Driving Directions: To access, put on the GPS this address: 280 NW 14th Way, Dania Beach FL 33004. The vacant lot is just behind this property. Clear Vacant Lot. Area in full expansion! See all pictures.Public utilities appear to be in the area; buyer to verify availability, setbacks, flood zone, and impact fees with the City of Dania Beach.,County Or Parish:Broward County,Direction Faces:Northeast,Expiration Date:2026-04-09,List Office Name:Brokers, LLC,Standard Status:Active Under Contract,Living Area Units:Square Feet,Major Change Type:Active Under Contract,Property Sub Type:Residential,State Or Province:FL,Subdivision Name:SUN GARDENS FIRST ADD,Tax Annual Amount:1823,Unparsed Address:3 Nw St, Dania Beach FL 33004,Listing Agreement:Exclusive Right To Sell,Building Area Units:Square Feet,Leasable Area Units:Square Feet,Lot Size Square Feet:6262,M I A M I R E_ Flood Zone:AE,Original List Price:155000,Public Survey Range:50,I D X Participation Y N:1,M I A M I R E_ Last Status:Active,M I A M I R E_ N A R Rules Y N:1,Syndication Remarks:CORNER Vacant Land on the best location of Dania Beach. 6262 Square Feet Ready to Build Your Dream House. Walking Distance to all the New Neighboring Developments which include the 102-acre premier mixed-use Dania Pointe with 1 million square feet retail stores and restaurants. Close to I-95, the Ft Lauderdale Airport and the Everglades Cruise Port. Do not miss this opportunity. Driving Directions: To access, put on the GPS this address: 280 NW 14th Way, Dania Beach FL 33004. The vacant lot is just behind this property. Clear Vacant Lot. Area in full expansion! See all pictures.Public utilities appear to be in the area; buyer to verify availability, setbacks, flood zone, and impact fees with the City of Dania Beach.,Listing Contract Date:2025-10-09,Originating System I D:miamire,Public Survey Section:33,Showing Instructions:Go Directly,Street Number Numeric:3,Tax Legal Description:SUN GARDENS FIRST ADD 30-21 B LOT 1 BLK 4,M I A M I R E_ Current Price:155000,Public Survey Township:50,Originating System Name:Miami Association of REALTORS?,M I A M I R E_ Geographic Area:Hollywood East (3010-3050),M I A M I R E_ Internet Remarks:CORNER Vacant Land on the best location of Dania Beach. 6262 Square Feet Ready to Build Your Dream House.,M I A M I R E_ Parcel Number M L X:0190,M I A M I R E_ Showing Time Flag:1,M I A M I R E_ Street View Param:1$26.05743$-80.15421$77.02$13.33$1.00$RuCw6a0DhbVIaXltO5uBDQ,Contract Status Change Date:2025-10-12,Internet Address Display Y N:1,Internet Consumer Comment Y N:1,M I A M I R E_ Ok To Advertise List:Yes - Attribution Required (Agent and Office),M I A M I R E_ Subdivision Number:15,M I A M I R E_ Agent Alternate Phone:305-469-5476,Internet Entire Listing Display Y N:1,M I A M I R E_ Address Internet Display:3 Nw St,Internet Automated Valuation Display Y N:1,
- Цена $155,000.00
- Цена изменилась: 2025-10-09
- Размер территории кв.футов
- Цена за кв.фут $
- Год постройки
- Вид на воду
- Вид
- Бассейн Yes
- Стиль
- Cтроительство
- Парковка
- Тип настила
- Тип объекта Land/Boat Docks
- Статус Active With Contract
- Опубликовано 2025-10-09
- Активен в листинге (дней) 23
- Меблированный
- City Dania Beach
- Zip 33004
- State Florida
- Subdivision
- Development Name SUN GARDENS FIRST ADD
- HOA Fees
- Taxes 1823
- Taxes Year 2024
En
Ru
Es