14790 264th St ,Residential en Venta & Alquilar
14790 264th St en Venta & Alquilar




Precio $3,700,000.00
- Tama帽o de lote 43560
- A帽o de construcci贸n
- Frente al agua
- Zip 33032
- Estilo
- Parking Descripci贸n
- Piscina Yes
- Estado Active
Descripci贸n
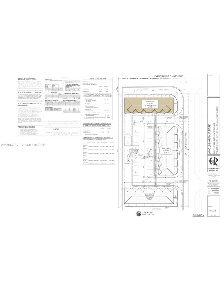
The property benefits from an approved site plan for 18 townhomes and includes a preliminary site plan for a 43-unit garden-style apartment development, providing multiple development pathways for residential builders and multifamily investors seeking projects in one of South Miami-Dade’s most active growth corridors. With continued population growth, expanding infrastructure, and increasing demand for attainable housing in South Miami-Dade, this site presents an exceptional opportunity for developers to capitalize on the region’s residential expansion. This offering represents a compelling opportunity for developers and investors seeking shovel-ready or near-term residential development sites in Miami-Dade County.
33 56 39 1 AC BEG NW COR OF E1/2 OF NE1/4 OF NE1/4 E165FT S330FT W165FT N330FT TO POB LESS N35FT LOT SIZE 48,673 SQ FT M/L OR 17362-1960 049
Build To Suit
The property benefits from an approved site plan for 18 townhomes and includes a preliminary site plan for a 43-unit garden-style apartment development, providing multiple development pathways for residential builders and multifamily investors seeking projects in one of South Miami-Dade’s most active growth corridors. With continued population growth, expanding infrastructure, and increasing demand for attainable housing in South Miami-Dade, this site presents an exceptional opportunity for developers to capitalize on the region’s residential expansion. This offering represents a compelling opportunity for developers and investors seeking shovel-ready or near-term residential development sites in Miami-Dade County.
City:Homestead,Zoning:3050,List A O R:A-Miami Association of REALTORS,Tax Year:2025,Latitude:25.5212016,List Price:3700000,Listing Id:A11984717,Longitude:-80.4308233,Mls Status:Active,Current Use:1:Check Land Use Plan,Directions:Offers excellent accessibility with proximity to So. Dixie Hwy. (US-1), Fl Turnpike, and South Dade Transitway, providing connectivity to employment centers throughout South Miami-Dade and the greater Miami metropolitan area.,Postal Code:33032,Street Name:264th St,Coordinates:1:25.5212016,Photos Count:4,Building Name:N/A,Days On Market:7,Listing Terms:1:Conventional,Lot Size Acres:1,Lot Size Units:Square Feet,M I A M I R E_ Area:69,M L S Area Major:N/a,On Market Date:2026-03-11,Parcel Number:30-69-33-000-0030,Property Type:Land/Boat Docks,Street Number:14790,Public Remarks:The property benefits from an approved site plan for 18 townhomes and includes a preliminary site plan for a 43-unit garden-style apartment development, providing multiple development pathways for residential builders and multifamily investors seeking projects in one of South Miami-Dade’s most active growth corridors. With continued population growth, expanding infrastructure, and increasing demand for attainable housing in South Miami-Dade, this site presents an exceptional opportunity for developers to capitalize on the region’s residential expansion. This offering represents a compelling opportunity for developers and investors seeking shovel-ready or near-term residential development sites in Miami-Dade County.,County Or Parish:Miami-Dade County,Direction Faces:North,Expiration Date:2027-03-10,List Office Name:The Katsikos Group, Inc.,Standard Status:Active,Living Area Units:Square Feet,Major Change Type:Price Increase,Postal Code Plus4:7302,Property Sub Type:Residential,State Or Province:FL,Street Dir Prefix:SW,Subdivision Name:N/A,AMC NARANJA,Tax Annual Amount:7963,Unparsed Address:14790 SW 264th St, Homestead FL 33032,Listing Agreement:Exclusive Right To Sell,Building Area Units:Square Feet,Leasable Area Units:Square Feet,Lot Size Square Feet:43560,M I A M I R E_ Flood Zone:X,Original List Price:3700,Previous List Price:3700,Public Survey Range:69,I D X Participation Y N:1,M I A M I R E_ N A R Rules Y N:1,Showing Contact Type:1:Call Listing Office,Syndication Remarks:The property benefits from an approved site plan for 18 townhomes and includes a preliminary site plan for a 43-unit garden-style apartment development, providing multiple development pathways for residential builders and multifamily investors seeking projects in one of South Miami-Dade’s most active growth corridors. With continued population growth, expanding infrastructure, and increasing demand for attainable housing in South Miami-Dade, this site presents an exceptional opportunity for developers to capitalize on the region’s residential expansion. This offering represents a compelling opportunity for developers and investors seeking shovel-ready or near-term residential development sites in Miami-Dade County.,Listing Contract Date:2026-03-11,Originating System I D:miamire,Public Survey Section:33,Showing Instructions:Call Listing Agent,Call Listing Office,Street Number Numeric:14790,Tax Legal Description:33 56 39 1 AC BEG NW COR OF E1/2 OF NE1/4 OF NE1/4 E165FT S330FT W165FT N330FT TO POB LESS N35FT LOT SIZE 48,673 SQ FT M/L OR 17362-1960 049,M I A M I R E_ Current Price:3700000,Public Survey Township:69,M I A M I R E_ Municipal Code:30,Originating System Name:Miami Association of REALTORS庐,M I A M I R E_ Internet Remarks:1 Acre Development Site, Ideal for townhome or workforce housing development rapidly expanding residential submarket.,M I A M I R E_ Parcel Number M L X:0030,M I A M I R E_ Street View Param:1$25.5211$-80.430696$151.11$13.33$1.00$5iMWNrywngOpgBcEoYBTaw,Contract Status Change Date:2026-03-11,Internet Address Display Y N:1,Internet Consumer Comment Y N:1,M I A M I R E_ Ok To Advertise List:With Written Broker Approval,M I A M I R E_ Agent Alternate Phone:305-323-6373,M I A M I R E_ Supplemental Remarks:Prime Multifamily Development Opportunity | Naranja Expansion Area | Approved Townhome Site Plan. Rare opportunity to acquire a 1 Acre residential development site located within the rapidly growing Naranja.,Internet Entire Listing Display Y N:1,M I A M I R E_ Address Internet Display:14790 SW 264th St,Internet Automated Valuation Display Y N:1,
- Precio $3,700,000.00
- Cambio de precio: 2026-03-17
- Tama帽o de lote sq. ft.
- Precio por p.c. $
- A帽o de construcci贸n
- Frente al agua
- Ver
- Piscina Yes
- Estilo
- Construcci贸n
- Parking Descripci贸n
- Tipo de suelo
- Tipo de propiedad Land/Boat Docks
- Estado Active
- Listado 2026-03-17
- D铆as en el mercado 64
- Amueblado
- City Homestead
- Zip 33032
- State Florida
- Subdivision
- Development Name N/A
- HOA Fees
- Taxes 7963
- Taxes Year 2025
En
Ru
Es