12010 214th Ter ,Residential, Unimproved Multi Family (5+units), Dixie Pines 2nd Rev en Venta & Alquilar
12010 214th Ter en Venta & Alquilar







Precio $364,990.00
- Tama帽o de lote 5985
- A帽o de construcci贸n
- Frente al agua
- Zip 33177
- Estilo
- Parking Descripci贸n
- Piscina Yes
- Estado Active
Descripci贸n
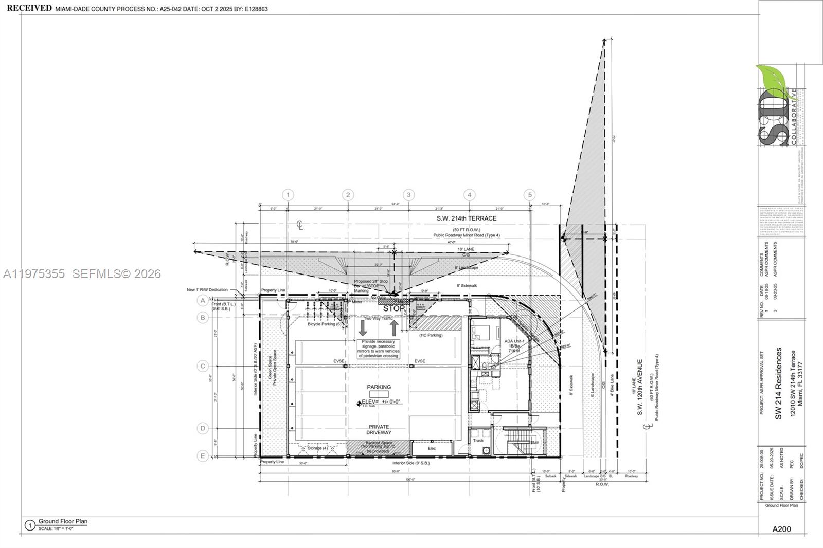
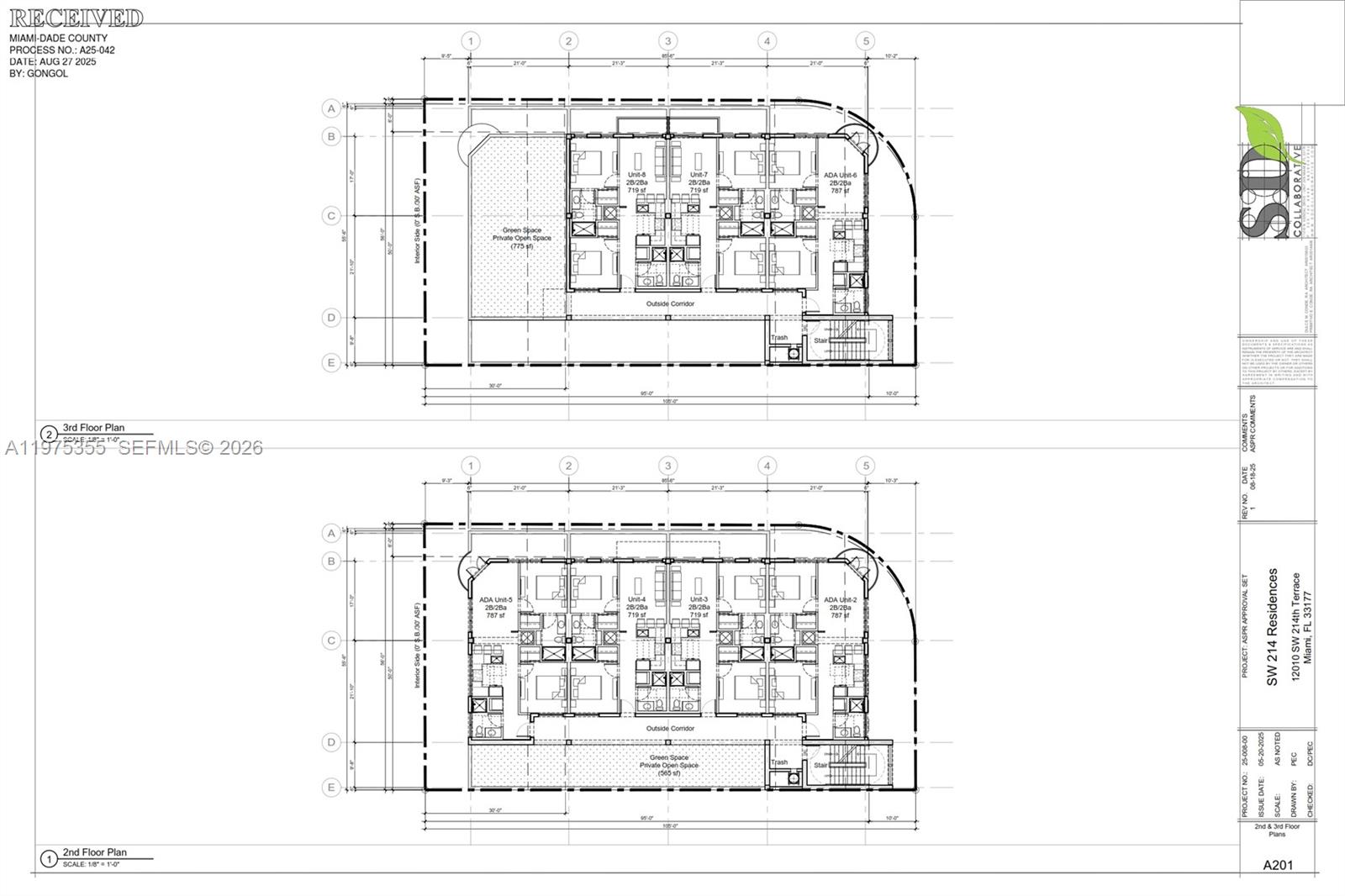
100% SITE PLAN APPROVED PROJECT. 8 all market rate units (can be sold as individual condos if desired) of 2/2's with 8 parking spaces. 8 inch water line/ 12 inch sewer abutting property and ready to connect no costly extensions needed. 2nd option for 25 units / 6 stories was approved in pre-app with the planning department if the buyer is interested. Blocks from the $1 billion redevelopment project Southplace City Center a "city within a city," featuring 5,000 residential units, 500,000 sqft retail, and a hotel. A lot of development in planning within two blocks (see photo). Not in a flood zone. Please email me for a copy of the full site plan. LOWEST PRICED PER SQ FT FOR THIS ZONING IN 33177 or 33170.
12-13 56 39 .25 AC DIXIE PINES PB 31-51 N57FT OF E105FT TR 13 LOT SIZE 57.000 X 105
Corner Location, Less Than 1 Acre
100% SITE PLAN APPROVED PROJECT. 8 all market rate units (can be sold as individual condos if desired) of 2/2's with 8 parking spaces. 8 inch water line/ 12 inch sewer abutting property and ready to connect no costly extensions needed. 2nd option for 25 units / 6 stories was approved in pre-app with the planning department if the buyer is interested. Blocks from the $1 billion redevelopment project Southplace City Center a "city within a city," featuring 5,000 residential units, 500,000 sqft retail, and a hotel. A lot of development in planning within two blocks (see photo). Not in a flood zone. Please email me for a copy of the full site plan. LOWEST PRICED PER SQ FT FOR THIS ZONING IN 33177 or 33170.
City:Miami,Zoning:90 units per acre,List A O R:A-Miami Association of REALTORS,Tax Year:2025,Latitude:25.5674694,Elevation:5,List Price:364990,Listing Id:A11975355,Longitude:-80.3870248,Mls Status:Active,Utilities:1:Sewer Connected,2:Water Connected,3:Cable Available,4:Electricity Available,5:Sewer Available,6:Trash Removal,7:Underground Utilities,8:Water Available,Postal Code:33177,Street Name:214th Ter,Coordinates:1:25.5674694,Lot Features:1:Less Than 1 Acre,Photos Count:7,Possible Use:1:Suburban,2:Transition,Building Name:DIXIE PINES 2ND REV,Days On Market:17,Listing Terms:1:Conventional,2:Exchange,3:Owner Will Carry,Lot Size Acres:0.1377,Lot Size Units:Square Feet,M I A M I R E_ Area:69,M L S Area Major:Dixie Pines 2nd Rev,On Market Date:2026-03-03,Parcel Number:30-69-12-008-1390,Property Type:Commercial Land,Street Number:12010,Public Remarks:100% SITE PLAN APPROVED PROJECT. 8 all market rate units (can be sold as individual condos if desired) of 2/2's with 8 parking spaces. 8 inch water line/ 12 inch sewer abutting property and ready to connect no costly extensions needed. 2nd option for 25 units / 6 stories was approved in pre-app with the planning department if the buyer is interested. Blocks from the $1 billion redevelopment project Southplace City Center a "city within a city," featuring 5,000 residential units, 500,000 sqft retail, and a hotel. A lot of development in planning within two blocks (see photo). Not in a flood zone. Please email me for a copy of the full site plan. LOWEST PRICED PER SQ FT FOR THIS ZONING IN 33177 or 33170.,County Or Parish:Miami-Dade County,Documents Count:3,Expiration Date:2026-06-29,Frontage Length:105,List Office Name:Zilla Real Estate, Inc,Standard Status:Active,Living Area Units:Square Feet,Major Change Type:Price Decrease,Postal Code Plus4:0000,Property Sub Type:Residential,State Or Province:FL,Street Dir Prefix:SW,Subdivision Name:DIXIE PINES 2ND REV,Tax Annual Amount:1434,Unparsed Address:12010 SW 214th Ter, Miami FL 33177,Listing Agreement:Exclusive Right To Sell,M I A M I R E_ Blogging:1,Road Frontage Type:1:City/County Maintained,Building Area Units:Square Feet,Leasable Area Units:Square Feet,Lot Size Dimensions:105x57,Lot Size Square Feet:5985,M I A M I R E_ Flood Zone:X,M I A M I R E_ L P Amt Sq Ft:60.9841,Original List Price:369990,Previous List Price:369990,Public Survey Range:69,Documents Available:1:Previous Title Policy,2:Survey Available,I D X Participation Y N:1,M I A M I R E_ N A R Rules Y N:1,Syndication Remarks:100% SITE PLAN APPROVED PROJECT. 8 all market rate units (can be sold as individual condos if desired) of 2/2's with 8 parking spaces. 8 inch water line/ 12 inch sewer abutting property and ready to connect no costly extensions needed. 2nd option for 25 units / 6 stories was approved in pre-app with the planning department if the buyer is interested. Blocks from the $1 billion redevelopment project Southplace City Center a "city within a city," featuring 5,000 residential units, 500,000 sqft retail, and a hotel. A lot of development in planning within two blocks (see photo). Not in a flood zone. Please email me for a copy of the full site plan. LOWEST PRICED PER SQ FT FOR THIS ZONING IN 33177 or 33170.,Listing Contract Date:2026-03-03,Originating System I D:miamire,Public Survey Section:12,Showing Instructions:Go Directly,Street Number Numeric:12010,Tax Legal Description:12-13 56 39 .25 AC DIXIE PINES PB 31-51 N57FT OF E105FT TR 13 LOT SIZE 57.000 X 105,M I A M I R E_ Current Price:364990,M I A M I R E_ Jurisdiction:County,M I A M I R E_ Owner Agent Y N:1,Public Survey Township:69,M I A M I R E_ Municipal Code:30,Originating System Name:Miami Association of REALTORS?,M I A M I R E_ Internet Remarks:SITE PLAN APPROVED PROJECT. 8 market rate units of 2/2's. Water and sewer at site. 2nd option for 25 units/6 stories was also pre approved.,M I A M I R E_ Parcel Number M L X:1390,M I A M I R E_ Street View Param:1$25.567511$-80.386951$239.95$13.33$1.00$mSTKews6N27PqlrfuTm_Eg,Contract Status Change Date:2026-03-03,Internet Address Display Y N:1,Internet Consumer Comment Y N:1,M I A M I R E_ Ok To Advertise List:No,M I A M I R E_ Subdivision Number:8,M I A M I R E_ Environmental Audit:None,M I A M I R E_ Agent Alternate Phone:786-972-9746,M I A M I R E_ Inc Exp Statement Period:0,Internet Entire Listing Display Y N:1,M I A M I R E_ Address Internet Display:12010 SW 214th Ter,Internet Automated Valuation Display Y N:1,
- Precio $364,990.00
- Cambio de precio: 2026-03-20
- Tama帽o de lote sq. ft.
- Precio por p.c. $
- A帽o de construcci贸n
- Frente al agua
- Ver
- Piscina Yes
- Estilo
- Construcci贸n
- Parking Descripci贸n
- Tipo de suelo
- Tipo de propiedad Commercial Land
- Estado Active
- Listado 2026-03-20
- D铆as en el mercado 21
- Amueblado
- City Miami
- Zip 33177
- State Florida
- Subdivision
- Development Name DIXIE PINES 2ND REV
- HOA Fees
- Taxes 1434
- Taxes Year 2025
En
Ru
Es