2323 Polk St ,Residential, Hollywood Little Ranches en Venta & Alquilar
2323 Polk St en Venta & Alquilar







Precio $2,396,500.00
- Tama帽o de lote 20515
- A帽o de construcci贸n
- Frente al agua
- Zip 33020
- Estilo
- Parking Descripci贸n
- Piscina Yes
- Estado Active
Descripci贸n
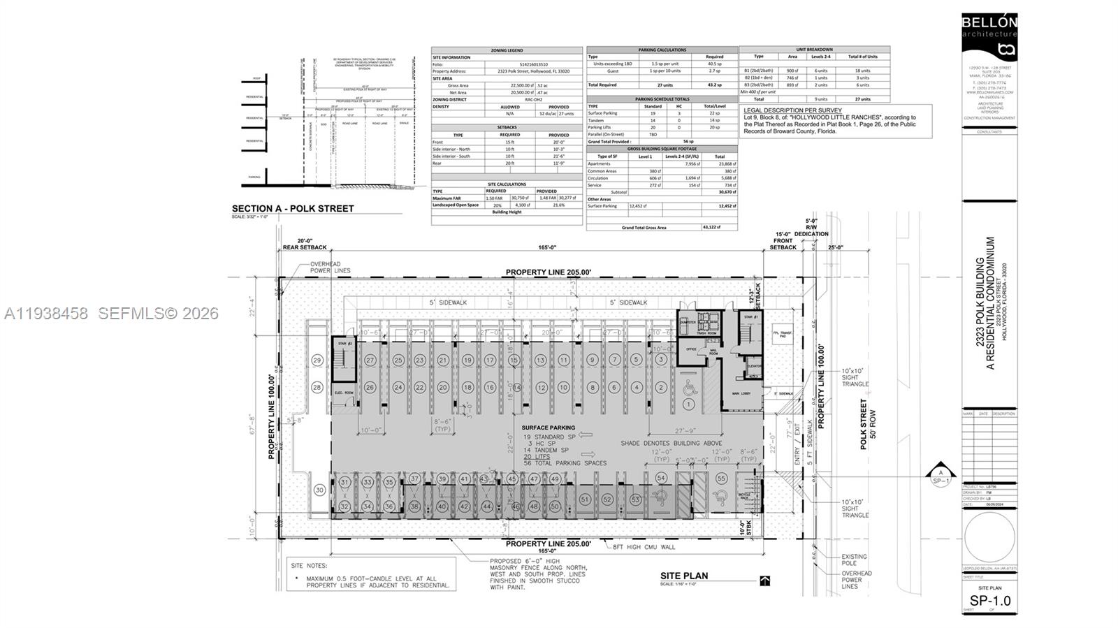
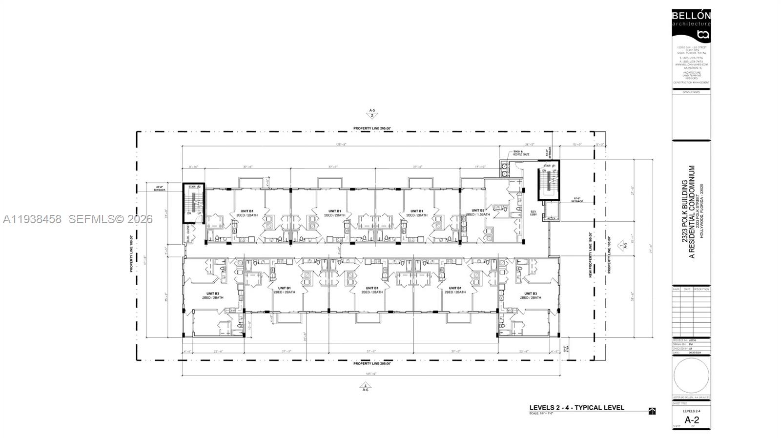
Just Listed. Exceptional development opportunity at 2323 Polk Street, Hollywood, FL. Approved plans for a 4-story, 27-unit multifamily project located within the Regional Activity Center (DH-2 zoning), with the owner approximately two months away from obtaining the building permit. The project is thoughtfully designed for efficiency, featuring mostly 2BR/2BA units and 56 total parking spaces, including standard, ADA, tandem, and mechanical lifts—an uncommon advantage in the submarket. The area is predominantly rental-focused, creating a rare opportunity for a condo-oriented or ownership-ready product. Ideal for developers or builders avoiding the time and cost of entitlements. Offering Memorandum available; plans and additional documentation upon request.
HOLLYWOOD LITTLE RANCHES 1-26 B LOT 9 BLK 8
City Location, Near Airport, Near School, Fenced, Other, Septic
Just Listed. Exceptional development opportunity at 2323 Polk Street, Hollywood, FL. Approved plans for a 4-story, 27-unit multifamily project located within the Regional Activity Center (DH-2 zoning), with the owner approximately two months away from obtaining the building permit. The project is thoughtfully designed for efficiency, featuring mostly 2BR/2BA units and 56 total parking spaces, including standard, ADA, tandem, and mechanical lifts—an uncommon advantage in the submarket. The area is predominantly rental-focused, creating a rare opportunity for a condo-oriented or ownership-ready product. Ideal for developers or builders avoiding the time and cost of entitlements. Offering Memorandum available; plans and additional documentation upon request.
City:Hollywood,Zoning:DH-2,List A O R:A-Miami Association of REALTORS,Tax Year:2025,Latitude:26.0127553,Elevation:5,List Price:2396500,Listing Id:A11938458,Longitude:-80.1537639,Mls Status:Active,Utilities:1:Electricity Connected,2:Natural Gas Connected,3:Water Connected,4:Cable Available,5:Electricity Available,6:Natural Gas Available,7:Other,8:Trash Removal,9:Water Available,Current Use:1:Check Land Use Plan,Postal Code:33020,Street Name:Polk St,Coordinates:1:26.0127553,Lot Features:1:Near Airport,2:Near School,3:Fenced,4:Other,5:Septic,Photos Count:7,Building Name:HOLLYWOOD LITTLE RANCHES,Listing Terms:1:Conventional,Lot Size Acres:0.471,Lot Size Units:Square Feet,M I A M I R E_ Area:3050,M L S Area Major:Hollywood Little Ranches,On Market Date:2026-03-24,Parcel Number:514216013510,Property Type:Land/Boat Docks,Street Number:2323,Public Remarks:Just Listed. Exceptional development opportunity at 2323 Polk Street, Hollywood, FL. Approved plans for a 4-story, 27-unit multifamily project located within the Regional Activity Center (DH-2 zoning), with the owner approximately two months away from obtaining the building permit. The project is thoughtfully designed for efficiency, featuring mostly 2BR/2BA units and 56 total parking spaces, including standard, ADA, tandem, and mechanical lifts—an uncommon advantage in the submarket. The area is predominantly rental-focused, creating a rare opportunity for a condo-oriented or ownership-ready product. Ideal for developers or builders avoiding the time and cost of entitlements. Offering Memorandum available; plans and additional documentation upon request.,County Or Parish:Broward County,Direction Faces:South,Documents Count:6,Expiration Date:2026-08-31,List Office Name:Soar Realty Corp,Standard Status:Active,Living Area Units:Square Feet,Major Change Type:New,Postal Code Plus4:6714,Property Sub Type:Residential,State Or Province:FL,Subdivision Name:HOLLYWOOD LITTLE RANCHES,Tax Annual Amount:23284,Unparsed Address:2323 Polk St, Hollywood FL 33020,Listing Agreement:Exclusive Right To Sell,Building Area Units:Square Feet,Development Status:1:Recorded Plat,Leasable Area Units:Square Feet,Lot Size Square Feet:20515,M I A M I R E_ Flood Zone:X,Original List Price:2396500,Public Survey Range:42,Documents Available:1:Engineering Studies,2:Copies Of Lease(S),3:Plans Available,4:Previous Title Policy,5:Survey Available,I D X Participation Y N:1,M I A M I R E_ N A R Rules Y N:1,Syndication Remarks:Just Listed. Exceptional development opportunity at 2323 Polk Street, Hollywood, FL. Approved plans for a 4-story, 27-unit multifamily project located within the Regional Activity Center (DH-2 zoning), with the owner approximately two months away from obtaining the building permit. The project is thoughtfully designed for efficiency, featuring mostly 2BR/2BA units and 56 total parking spaces, including standard, ADA, tandem, and mechanical lifts—an uncommon advantage in the submarket. The area is predominantly rental-focused, creating a rare opportunity for a condo-oriented or ownership-ready product. Ideal for developers or builders avoiding the time and cost of entitlements. Offering Memorandum available; plans and additional documentation upon request.,Listing Contract Date:2026-03-24,Originating System I D:miamire,Public Survey Section:16,Showing Instructions:Call Listing Agent,No Sign,Showing Assist,Street Number Numeric:2323,Tax Legal Description:HOLLYWOOD LITTLE RANCHES 1-26 B LOT 9 BLK 8,M I A M I R E_ Current Price:2396500,Public Survey Township:42,M I A M I R E_ Municipal Code:51,M I A M I R E_ Total Mortgage:1260000,Originating System Name:Miami Association of REALTORS庐,M I A M I R E_ Geographic Area:Hollywood East (3010-3050),M I A M I R E_ Internet Remarks:Located in a high-growth area projected to expand between 7% and 9.6% through 2029鈥攊deal for investors and developers seeking strong future demand,M I A M I R E_ Parcel Number M L X:3510,M I A M I R E_ Showing Time Flag:1,M I A M I R E_ Street View Param:1$26.012859$-80.153683$322.01$13.33$1.00$onjagHX1uui34jevnxIizw,Contract Status Change Date:2026-03-24,Internet Address Display Y N:1,M I A M I R E_ Ok To Advertise List:Yes - Attribution NOT Required,M I A M I R E_ Subdivision Number:1,M I A M I R E_ Agent Alternate Phone:786-663-3237,M I A M I R E_ Supplemental Remarks:2323 Polk Street presents a compelling development opportunity for investors, developers, and builders seeking a multifamily project in a strategically positioned Hollywood submarket. The property is located within the Regional Activity Center (DH-2 zoning) and is approved for a 4-story, 27-unit multifamily building, with the ownership team approximately two months away from securing the building permit. The project has been deliberately designed with a profit-driven, efficiency-focused approach. Unlike many nearby developments that emphasize extensive common areas, luxury amenities, and smaller unit layouts, this building prioritizes functionality, livability, and market demand. The unit mix is predominantly 2-bedroom, 2-bathroom residences, a sharp contrast to surrounding projects that largely offer 1-bedroom units. This configuration appeals strongly to end users, families, roommates, and long-term tenants, supporting higher absorption and retention. A major competitive advantage of the project is its parking ratio. The development provides 56 total parking spaces, allowing for two parking spaces per unit, including standard, ADA, tandem, and mechanical lift spaces. This exceeds the typical parking ratios in the area, where many projects average approximately 1.5 spaces per unit, and significantly enhances marketability, especially for ownership-oriented or condo-ready strategies. The surrounding area has seen a concentration of rental-focused developments, creating a scarcity of new ownership-style multifamily product. This positions 2323 Polk as a unique opportunity for a buyer to deliver either a boutique condo project or a high-quality rental community with a differentiated unit mix and parking offering. The design flexibility allows a future owner to adapt the exit strategy based on market conditions, investor appetite, or financing structure. Substantial upfront work has already been completed, including architectural design, civil engineering, fire flow calculations, and Technical Advisory Committee (TAC) review with the City of Hollywood. This significantly reduces entitlement risk, shortens the development timeline, and allows a buyer to avoid the time, uncertainty, and carrying costs typically associated with early-stage projects. The site is surrounded by established residential uses and benefits from proximity to Downtown Hollywood, major transportation corridors, employment centers, and regional amenities. The broader market is projected to experience sustained population and economic growth through 2029, supporting long-term demand for well-located multifamily housing. 2323 Polk Street is ideally suited for a developer or investor seeking a smartly designed, cost-efficient project with strong fundamentals, reduced execution risk, and multiple viable exit strategies. Offering Memorandum available. Architectural plans, civil drawings, and supporting documentation are available upon request.,Internet Entire Listing Display Y N:1,M I A M I R E_ Address Internet Display:2323 Polk St,
- Precio $2,396,500.00
- Cambio de precio: 2026-01-05
- Tama帽o de lote sq. ft.
- Precio por p.c. $
- A帽o de construcci贸n
- Frente al agua
- Ver
- Piscina Yes
- Estilo
- Construcci贸n
- Parking Descripci贸n
- Tipo de suelo
- Tipo de propiedad Land/Boat Docks
- Estado Active
- Listado 2026-01-05
- D铆as en el mercado 44
- Amueblado
- City Hollywood
- Zip 33020
- State Florida
- Subdivision
- Development Name HOLLYWOOD LITTLE RANCHES
- HOA Fees
- Taxes 23284
- Taxes Year 2025
En
Ru
Es