2306 Van Buren St ,Residential, Hollywood Little Ranches en Venta & Alquilar
2306 Van Buren St en Venta & Alquilar








Precio $2,250,000.00
- Tama帽o de lote 20502
- A帽o de construcci贸n
- Frente al agua
- Zip 33020
- Estilo
- Parking Descripci贸n
- Piscina Yes
- Estado Active
Descripci贸n
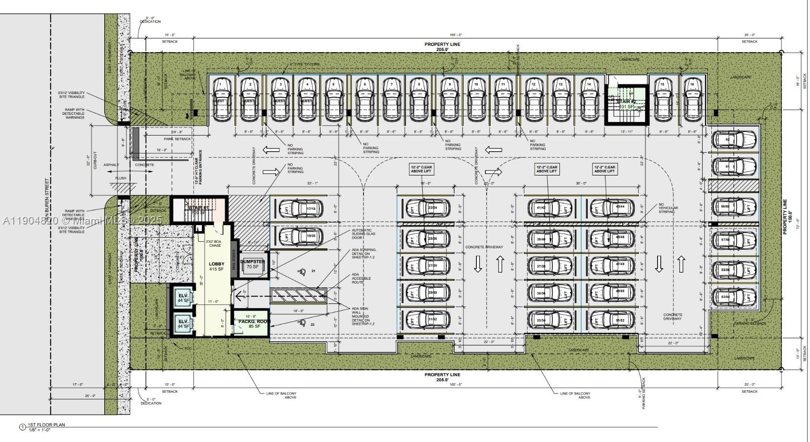
Outstanding Development Opportunity! Perfectly located site approved for a 36-unit multifamily project with a great mix of one, two, and three-bedroom residences. Includes site plan approval and architectural credit toward construction documents. Current on-site rentals generate $7,000/month, providing income while you prepare to build. Full plans and details available upon request.
HOLLYWOOD LITTLE RANCHES 1-26 B LOT 16 BLK 5
City Location, Other
Outstanding Development Opportunity! Perfectly located site approved for a 36-unit multifamily project with a great mix of one, two, and three-bedroom residences. Includes site plan approval and architectural credit toward construction documents. Current on-site rentals generate $7,000/month, providing income while you prepare to build. Full plans and details available upon request.
City:Hollywood,Zoning:DH-2,List A O R:A-Miami Association of REALTORS,Tax Year:2024,Latitude:26.0099032,List Price:2250000,Listing Id:A11904820,Longitude:-80.1530741,Mls Status:Active,Utilities:1:Electricity Available,2:Underground Utilities,3:Water Available,Current Use:1:Check Land Use Plan,Postal Code:33020,Street Name:Van Buren St,Coordinates:1:26.0099032,Lot Features:1:Other,Photos Count:8,Building Name:HOLLYWOOD LITTLE RANCHES,Listing Terms:1:Cryptocurrency,Lot Size Acres:0.47,Lot Size Units:Square Feet,M I A M I R E_ Area:3050,M L S Area Major:Hollywood Little Ranches,On Market Date:2025-10-29,Parcel Number:514216012640,Property Type:Land/Boat Docks,Street Number:2306,Public Remarks:Outstanding Development Opportunity! Perfectly located site approved for a 36-unit multifamily project with a great mix of one, two, and three-bedroom residences. Includes site plan approval and architectural credit toward construction documents. Current on-site rentals generate $7,000/month, providing income while you prepare to build. Full plans and details available upon request.,County Or Parish:Broward County,Direction Faces:North,Documents Count:3,Expiration Date:2026-10-29,List Office Name:RE/MAX 5 Star Realty,Standard Status:Active,Living Area Units:Square Feet,Major Change Type:New,Postal Code Plus4:4966,Property Sub Type:Residential,State Or Province:FL,Subdivision Name:HOLLYWOOD LITTLE RANCHES,Tax Annual Amount:23860,Unparsed Address:2306 Van Buren St, Hollywood FL 33020,Listing Agreement:Exclusive Right To Sell,M I A M I R E_ Blogging:1,Building Area Units:Square Feet,Leasable Area Units:Square Feet,Lot Size Square Feet:20502,M I A M I R E_ Flood Zone:X,Original List Price:2250000,Public Survey Range:51,Documents Available:1:Other Documents Available,2:Survey Available,I D X Participation Y N:1,M I A M I R E_ N A R Rules Y N:1,Syndication Remarks:Outstanding Development Opportunity! Perfectly located site approved for a 36-unit multifamily project with a great mix of one, two, and three-bedroom residences. Includes site plan approval and architectural credit toward construction documents. Current on-site rentals generate $7,000/month, providing income while you prepare to build. Full plans and details available upon request.,Listing Contract Date:2025-10-29,Originating System I D:miamire,Public Survey Section:16,Showing Instructions:Call Listing Agent,Street Number Numeric:2306,Tax Legal Description:HOLLYWOOD LITTLE RANCHES 1-26 B LOT 16 BLK 5,M I A M I R E_ Current Price:2250000,Public Survey Township:51,M I A M I R E_ Total Mortgage:937500,Originating System Name:Miami Association of REALTORS?,M I A M I R E_ Geographic Area:Hollywood East (3010-3050),Distance To Sewer Comments:With-In 500',M I A M I R E_ Internet Remarks:Development Opportunity! Perfectly located site approved for a 36-unit multifamily project with a great mix of one, two, and three-bedroom residences.,M I A M I R E_ Parcel Number M L X:2640,M I A M I R E_ Street View Param:1$26.009671$-80.152967$177.29$13.33$1.00$Q_yY9SHVDCG5DborzvP5dQ,Contract Status Change Date:2025-10-29,Internet Address Display Y N:1,Internet Consumer Comment Y N:1,M I A M I R E_ Ok To Advertise List:With Written Broker Approval,M I A M I R E_ Subdivision Number:1,M I A M I R E_ Agent Alternate Phone:954-328-0761,Internet Entire Listing Display Y N:1,M I A M I R E_ Address Internet Display:2306 Van Buren St,Internet Automated Valuation Display Y N:1,
- Precio $2,250,000.00
- Cambio de precio: 2025-10-29
- Tama帽o de lote sq. ft.
- Precio por p.c. $
- A帽o de construcci贸n
- Frente al agua
- Ver
- Piscina Yes
- Estilo
- Construcci贸n
- Parking Descripci贸n
- Tipo de suelo
- Tipo de propiedad Land/Boat Docks
- Estado Active
- Listado 2025-10-29
- D铆as en el mercado 2
- Amueblado
- City Hollywood
- Zip 33020
- State Florida
- Subdivision
- Development Name HOLLYWOOD LITTLE RANCHES
- HOA Fees
- Taxes 23860
- Taxes Year 2024
 
             En
En Ru
Ru Es
Es