1240 12th Ave ,Residential, Second Westmoreland Addn for Sale & Rent
1240 12th Ave for Sale & Rent



Price $950,000.00
- Lot size 7020
- Year Build
- Waterfront
- Zip 33129
- Style
- Parking Description
- Pool Yes
- Status Active
Description
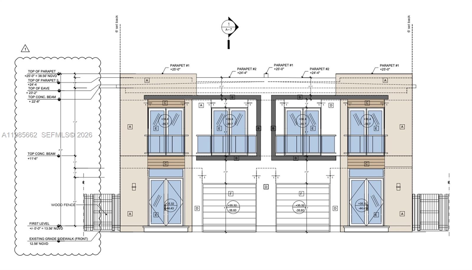
Prime Miami land sale with fully approved plans for a modern duplex. Shovel ready opportunity, buyer can close, pay impact fees, and begin construction immediately. Plans include a two story duplex totaling approximately 5,600 plus square feet, featuring spacious 3 bedroom units, private garages, open living areas, and second floor balconies. Designed for today’s market, ideal for resale or long term rental. Located in a rapidly evolving area surrounded by new construction, with easy access to Brickell, Downtown Miami, Coral Gables, and major highways.
SECOND WESTMORELAND ADD PB 3-62 LOT 5 LESS E13 1/2FT FOR RW PER OR 32781-4108 BLK 16 LOT SIZE 7020 SQ FT
Cleared, Fenced, Other
Prime Miami land sale with fully approved plans for a modern duplex. Shovel ready opportunity, buyer can close, pay impact fees, and begin construction immediately. Plans include a two story duplex totaling approximately 5,600 plus square feet, featuring spacious 3 bedroom units, private garages, open living areas, and second floor balconies. Designed for today’s market, ideal for resale or long term rental. Located in a rapidly evolving area surrounded by new construction, with easy access to Brickell, Downtown Miami, Coral Gables, and major highways.
City:Miami,Zoning:5700,List A O R:A-Miami Association of REALTORS,Tax Year:2025,Latitude:25.7612669,List Price:950000,Listing Id:A11985662,Longitude:-80.2145168,Mls Status:Active,Current Use:1:Unused,Postal Code:33129,Street Name:12th Ave,Coordinates:1:25.7612669,Lot Features:1:Fenced,2:Other,Photos Count:3,Building Name:SECOND WESTMORELAND ADDN,Days On Market:1,Listing Terms:1:Cryptocurrency,Lot Size Acres:0.16,Lot Size Units:Square Feet,M I A M I R E_ Area:41,M L S Area Major:Second Westmoreland Addn,On Market Date:2026-03-18,Parcel Number:01-41-11-015-0670,Property Type:Land/Boat Docks,Street Number:1240,Public Remarks:Prime Miami land sale with fully approved plans for a modern duplex. Shovel ready opportunity, buyer can close, pay impact fees, and begin construction immediately. Plans include a two story duplex totaling approximately 5,600 plus square feet, featuring spacious 3 bedroom units, private garages, open living areas, and second floor balconies. Designed for today’s market, ideal for resale or long term rental. Located in a rapidly evolving area surrounded by new construction, with easy access to Brickell, Downtown Miami, Coral Gables, and major highways.,County Or Parish:Miami-Dade County,Direction Faces:East,Expiration Date:2027-03-19,List Office Name:Cornerstone Intl. Realty, LLC,Standard Status:Active,Living Area Units:Square Feet,Major Change Type:New,Postal Code Plus4:1831,Property Sub Type:Residential,State Or Province:FL,Street Dir Prefix:SW,Subdivision Name:SECOND WESTMORELAND ADDN,Tax Annual Amount:10313,Unparsed Address:1240 SW 12th Ave, Miami FL 33129,Listing Agreement:Exclusive Right To Sell,Building Area Units:Square Feet,Leasable Area Units:Square Feet,Lot Size Square Feet:7020,M I A M I R E_ Flood Zone:X,Original List Price:950000,Public Survey Range:41,I D X Participation Y N:1,M I A M I R E_ N A R Rules Y N:1,Syndication Remarks:Prime Miami land sale with fully approved plans for a modern duplex. Shovel ready opportunity, buyer can close, pay impact fees, and begin construction immediately. Plans include a two story duplex totaling approximately 5,600 plus square feet, featuring spacious 3 bedroom units, private garages, open living areas, and second floor balconies. Designed for today’s market, ideal for resale or long term rental. Located in a rapidly evolving area surrounded by new construction, with easy access to Brickell, Downtown Miami, Coral Gables, and major highways.,Listing Contract Date:2026-03-18,Originating System I D:miamire,Public Survey Section:11,Showing Instructions:Call Listing Agent,Other Showing Instruction,Street Number Numeric:1240,Tax Legal Description:SECOND WESTMORELAND ADD PB 3-62 LOT 5 LESS E13 1/2FT FOR RW PER OR 32781-4108 BLK 16 LOT SIZE 7020 SQ FT,M I A M I R E_ Current Price:950000,Public Survey Township:41,M I A M I R E_ Municipal Code:1,Originating System Name:Miami Association of REALTORS®,M I A M I R E_ Internet Remarks:Prime Miami land sale with approved duplex plans. Shovel ready, close, pay fees, and start construction immediately.,M I A M I R E_ Parcel Number M L X:0670,M I A M I R E_ Showing Time Flag:1,M I A M I R E_ Street View Param:1$25.761222$-80.214584$222.88$13.33$1.00$UcMyc-BjzMmlMI17vQCjPg,Contract Status Change Date:2026-03-18,Internet Address Display Y N:1,M I A M I R E_ Ok To Advertise List:No,M I A M I R E_ Subdivision Number:15,M I A M I R E_ Agent Alternate Phone:305-720-3485,Internet Entire Listing Display Y N:1,M I A M I R E_ Address Internet Display:1240 SW 12th Ave,
- Price $950,000.00
- Price Change: 2026-03-19
- Lot size sq. ft.
- Price per sq.ft. $
- Year Build
- Waterfront
- View
- Pool Yes
- Style
- Construction
- Parking Description
- Flooring Type
- Property Type Land/Boat Docks
- Status Active
- Listed 2026-03-19
- Days on Market 62
- Furnished
- City Miami
- Zip 33129
- State Florida
- Subdivision
- Development Name SECOND WESTMORELAND ADDN
- HOA Fees
- Taxes 10313
- Taxes Year 2025
En
Ru
Es