12010 214th Ter ,Residential, Dixie Pines 2nd Rev for Sale & Rent
12010 214th Ter for Sale & Rent







Price $377,990.00
- Lot size 5985
- Year Build
- Waterfront
- Zip 33177
- Style
- Parking Description
- Pool Yes
- Status Active
Description
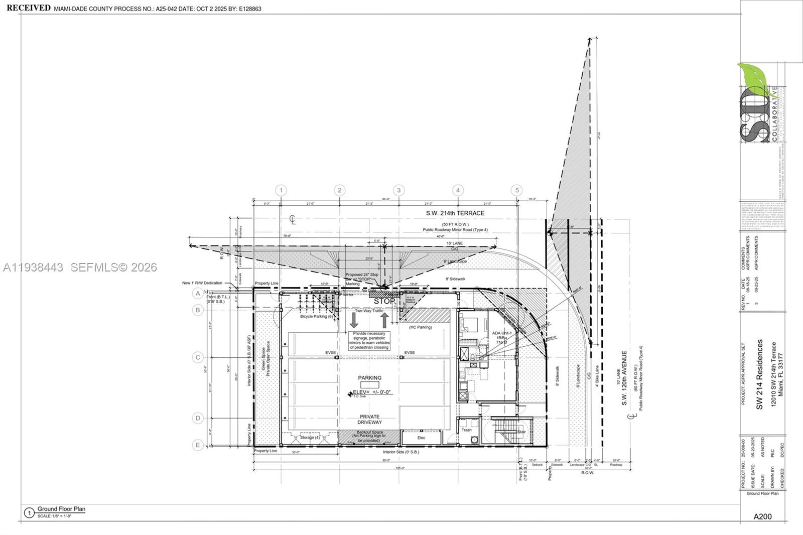
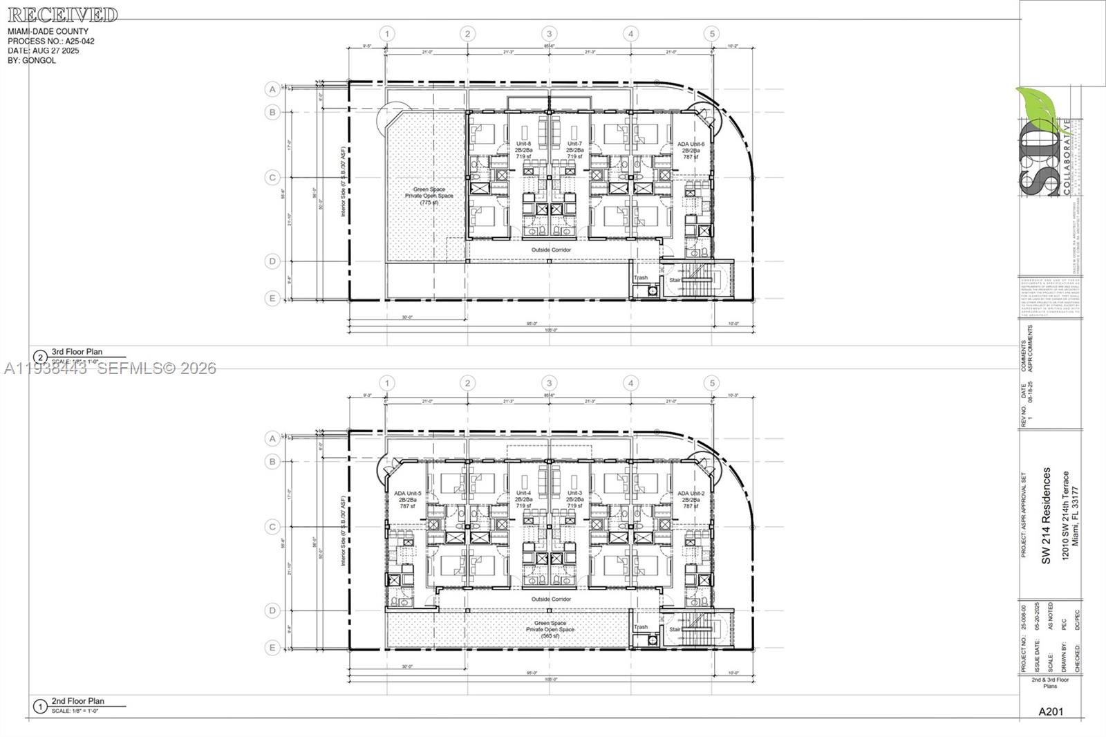
100% SITE PLAN APPROVED PROJECT. 8 all market rate units (can be sold as individual condos if desired) of 2/2's with 8 parking spaces. 8 inch water line/ 12 inch sewer abutting property and ready to connect no costly extensions needed. 2nd option for 25 units / 6 stories was approved in pre-app with the planning department if the buyer is interested. Blocks from the $1 billion redevelopment project Southplace City Center a "city within a city," featuring 5,000 residential units, 500,000sqft retail, and a hotel. A lot of development in planning within two blocks (see photo). Not in a flood zone. Please email me for a copy of the full site plan, but floor plan and elevations are provided in the attachments. LOWEST PRICED PER SQ FT FOR THIS ZONING IN 33177 or 33170.
12-13 56 39 .25 AC DIXIE PINES PB 31-51 N57FT OF E105FT TR 13 LOT SIZE 57.000 X 105
Corner Location, Less Than 1/4 Acre Lot, Build To Suit, Cleared
100% SITE PLAN APPROVED PROJECT. 8 all market rate units (can be sold as individual condos if desired) of 2/2's with 8 parking spaces. 8 inch water line/ 12 inch sewer abutting property and ready to connect no costly extensions needed. 2nd option for 25 units / 6 stories was approved in pre-app with the planning department if the buyer is interested. Blocks from the $1 billion redevelopment project Southplace City Center a "city within a city," featuring 5,000 residential units, 500,000sqft retail, and a hotel. A lot of development in planning within two blocks (see photo). Not in a flood zone. Please email me for a copy of the full site plan, but floor plan and elevations are provided in the attachments. LOWEST PRICED PER SQ FT FOR THIS ZONING IN 33177 or 33170.
City:Miami,Zoning:3161,List A O R:A-Miami Association of REALTORS,Tax Year:2025,Latitude:25.5674694,Elevation:5,List Price:377990,Listing Id:A11938443,Longitude:-80.3870248,Mls Status:Active,Utilities:1:Sewer Connected,2:Water Connected,3:Cable Available,4:Electricity Available,5:Irrigation Water,6:Sewer Available,7:Trash Removal,8:Water Available,Current Use:1:Check Land Use Plan,Postal Code:33177,Street Name:214th Ter,Coordinates:1:25.5674694,Lot Features:1:Less Than 1/4 Acre Lot,2:Build To Suit,3:Cleared,Photos Count:7,Building Name:DIXIE PINES 2ND REV,Days On Market:49,Listing Terms:1:Conventional,2:Exchange,Lot Size Acres:0.1377,Lot Size Units:Square Feet,M I A M I R E_ Area:69,M L S Area Major:Dixie Pines 2nd Rev,On Market Date:2026-01-05,Parcel Number:30-69-12-008-1390,Property Type:Land/Boat Docks,Street Number:12010,Public Remarks:100% SITE PLAN APPROVED PROJECT. 8 all market rate units (can be sold as individual condos if desired) of 2/2's with 8 parking spaces. 8 inch water line/ 12 inch sewer abutting property and ready to connect no costly extensions needed. 2nd option for 25 units / 6 stories was approved in pre-app with the planning department if the buyer is interested. Blocks from the $1 billion redevelopment project Southplace City Center a "city within a city," featuring 5,000 residential units, 500,000sqft retail, and a hotel. A lot of development in planning within two blocks (see photo). Not in a flood zone. Please email me for a copy of the full site plan, but floor plan and elevations are provided in the attachments. LOWEST PRICED PER SQ FT FOR THIS ZONING IN 33177 or 33170.,County Or Parish:Miami-Dade County,Direction Faces:East,Documents Count:3,Expiration Date:2026-04-30,List Office Name:Zilla Real Estate, Inc,Standard Status:Active,Living Area Units:Square Feet,Major Change Type:Price Decrease,Postal Code Plus4:0000,Property Sub Type:Residential,State Or Province:FL,Street Dir Prefix:SW,Subdivision Name:DIXIE PINES 2ND REV,Tax Annual Amount:1434,Unparsed Address:12010 SW 214th Ter, Miami FL 33177,Listing Agreement:Exclusive Right To Sell,M I A M I R E_ Blogging:1,Road Frontage Type:1:City/County Maintained,Building Area Units:Square Feet,Leasable Area Units:Square Feet,Lot Size Square Feet:5985,M I A M I R E_ Flood Zone:X,Original List Price:384990,Previous List Price:379990,Public Survey Range:69,Documents Available:1:Previous Title Policy,2:Survey Available,I D X Participation Y N:1,M I A M I R E_ N A R Rules Y N:1,Syndication Remarks:100% SITE PLAN APPROVED PROJECT. 8 all market rate units (can be sold as individual condos if desired) of 2/2's with 8 parking spaces. 8 inch water line/ 12 inch sewer abutting property and ready to connect no costly extensions needed. 2nd option for 25 units / 6 stories was approved in pre-app with the planning department if the buyer is interested. Blocks from the $1 billion redevelopment project Southplace City Center a "city within a city," featuring 5,000 residential units, 500,000sqft retail, and a hotel. A lot of development in planning within two blocks (see photo). Not in a flood zone. Please email me for a copy of the full site plan, but floor plan and elevations are provided in the attachments. LOWEST PRICED PER SQ FT FOR THIS ZONING IN 33177 or 33170.,Listing Contract Date:2026-01-05,Originating System I D:miamire,Public Survey Section:12,Showing Instructions:Go Directly,Street Number Numeric:12010,Tax Legal Description:12-13 56 39 .25 AC DIXIE PINES PB 31-51 N57FT OF E105FT TR 13 LOT SIZE 57.000 X 105,M I A M I R E_ Current Price:377990,M I A M I R E_ Owner Agent Y N:1,Public Survey Township:69,M I A M I R E_ Municipal Code:30,Originating System Name:Miami Association of REALTORS?,M I A M I R E_ Internet Remarks:SITE PLAN APPROVED PROJECT. 8 market rate units of 2/2's. Water and sewer at site. 2nd option for 25 units/6 stories was also pre approved.,M I A M I R E_ Parcel Number M L X:1390,M I A M I R E_ Street View Param:1$25.567511$-80.386951$239.95$13.33$1.00$mSTKews6N27PqlrfuTm_Eg,Contract Status Change Date:2026-01-05,Internet Address Display Y N:1,Internet Consumer Comment Y N:1,M I A M I R E_ Ok To Advertise List:No,M I A M I R E_ Subdivision Number:8,M I A M I R E_ Fill From Record_ M U I:421692875,M I A M I R E_ Agent Alternate Phone:786-972-9746,Internet Entire Listing Display Y N:1,M I A M I R E_ Address Internet Display:12010 SW 214th Ter,Internet Automated Valuation Display Y N:1,
- Price $377,990.00
- Price Change: 2026-02-23
- Lot size sq. ft.
- Price per sq.ft. $
- Year Build
- Waterfront
- View
- Pool Yes
- Style
- Construction
- Parking Description
- Flooring Type
- Property Type Land/Boat Docks
- Status Active
- Listed 2026-02-23
- Days on Market 50
- Furnished
- City Miami
- Zip 33177
- State Florida
- Subdivision
- Development Name DIXIE PINES 2ND REV
- HOA Fees
- Taxes 1434
- Taxes Year 2025
En
Ru
Es