0 sw 133 ct ,Residential, Bayview Park for Sale & Rent
0 sw 133 ct for Sale & Rent



Price $535,000.00
- Lot size 26572
- Year Build
- Waterfront
- Zip 33032
- Style
- Parking Description
- Pool Yes
- Status Active
Description
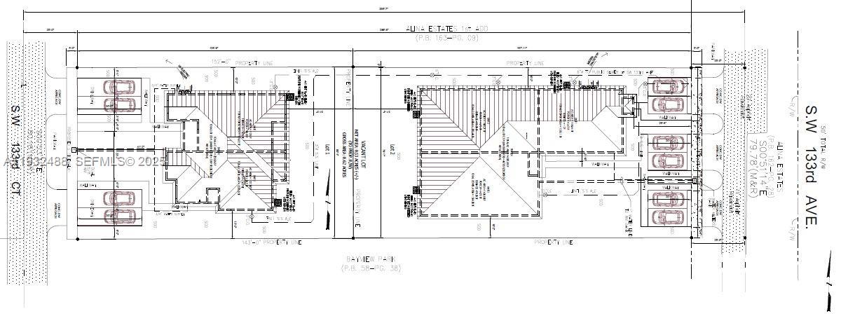
Zoning approval is in place under the workforce housing program for a duplex and triplex (five units total), along with full construction drawings.
35 56 39 .61 AC M/L NE1/4 OF SW1/4 OF NE1/4 OF NW1/4 LESS N256FT M/L LOT SIZE IRREGULAR OR 18842-2191 1099 6
1/2 To Less Than 3/4 Acre Lot, Other
Zoning approval is in place under the workforce housing program for a duplex and triplex (five units total), along with full construction drawings.
City:Miami,Tax Lot:26,572,Zoning:0100,List A O R:A-Miami Association of REALTORS,Tax Year:2025,Latitude:25.5236728,List Price:535000,Listing Id:A11932488,Longitude:-80.4069157,Mls Status:Active,Current Use:1:Other Usage,Postal Code:33032,Street Name:sw 133 ct,Coordinates:1:25.5236728,Lot Features:1:Other,Photos Count:3,Building Name:BAYVIEW PARK,Days On Market:82,Listing Terms:1:Conventional,2:Owner Will Carry,Lot Size Acres:0.62,Lot Size Units:Square Feet,M I A M I R E_ Area:69,M L S Area Major:Bayview Park,On Market Date:2025-12-17,Parcel Number:30-69-35-000-0141,Property Type:Land/Boat Docks,Street Number:0,Public Remarks:Zoning approval is in place under the workforce housing program for a duplex and triplex (five units total), along with full construction drawings.,County Or Parish:Miami-Dade County,Direction Faces:East,Expiration Date:2026-06-25,List Office Name:Secure 1 Real Estate Corp,Standard Status:Active,Living Area Units:Square Feet,Major Change Type:Price Decrease,Postal Code Plus4:0000,Property Sub Type:Residential,State Or Province:FL,Subdivision Name:BAYVIEW PARK,Tax Annual Amount:3077,Unparsed Address:0 sw 133 ct, Miami FL 33032,Listing Agreement:Exclusive Agency,M I A M I R E_ Blogging:1,Building Area Units:Square Feet,Development Status:1:Unrecorded Plat,Leasable Area Units:Square Feet,Lot Size Square Feet:26572,M I A M I R E_ Flood Zone:X,Original List Price:585000,Previous List Price:585000,Public Survey Range:69,I D X Participation Y N:1,M I A M I R E_ N A R Rules Y N:1,Syndication Remarks:Zoning approval is in place under the workforce housing program for a duplex and triplex (five units total), along with full construction drawings.,Listing Contract Date:2025-12-17,Originating System I D:miamire,Public Survey Section:35,Showing Instructions:Call Listing Agent,Go Directly,No Sign,Tax Legal Description:35 56 39 .61 AC M/L NE1/4 OF SW1/4 OF NE1/4 OF NW1/4 LESS N256FT M/L LOT SIZE IRREGULAR OR 18842-2191 1099 6,M I A M I R E_ Current Price:535000,M I A M I R E_ Owner Agent Y N:1,Public Survey Township:69,M I A M I R E_ Municipal Code:30,Originating System Name:Miami Association of REALTORS?,M I A M I R E_ Internet Remarks:Zoning approval is in place under the workforce housing program for a duplex and triplex (five units total), along with full construction drawings.,M I A M I R E_ Parcel Number M L X:0141,M I A M I R E_ Showing Time Flag:1,M I A M I R E_ Street View Param:1$25.519167$-80.406952$289.21$13.33$1.00$NP57s5h_S4chKs2Z3Jv_sg,Contract Status Change Date:2025-12-17,Internet Address Display Y N:1,M I A M I R E_ Ok To Advertise List:No,M I A M I R E_ Agent Alternate Phone:305-216-8331,Internet Entire Listing Display Y N:1,M I A M I R E_ Address Internet Display:0 sw 133 ct,
- Price $535,000.00
- Price Change: 2026-03-09
- Lot size sq. ft.
- Price per sq.ft. $
- Year Build
- Waterfront
- View
- Pool Yes
- Style
- Construction
- Parking Description
- Flooring Type
- Property Type Land/Boat Docks
- Status Active
- Listed 2026-03-09
- Days on Market 90
- Furnished
- City Miami
- Zip 33032
- State Florida
- Subdivision
- Development Name BAYVIEW PARK
- HOA Fees
- Taxes 3077
- Taxes Year 2025
En
Ru
Es