2146 7th St ,Residential, Bryandale for Sale & Rent
2146 7th St for Sale & Rent






Price $829,000.00
- Lot size 6300
- Year Build
- Waterfront
- Zip 33135
- Style
- Parking Description
- Pool Yes
- Status Active
Description
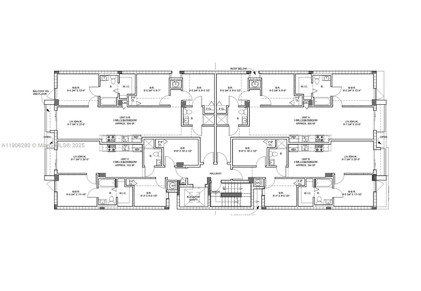
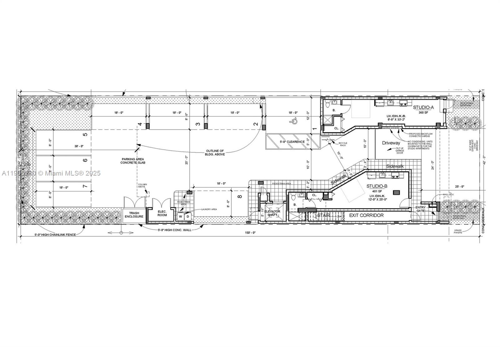
Great development opportunity in Miami’s rapidly growing East Little Havana corridor, just minutes from Brickell, Coral Gables, and the Miami River. Architectural plans already completed for a 10-unit multifamily project featuring eight 3-bedroom units and two studios on a 6,300 SF lot with an existing home. Surrounded by ongoing new construction and strong rental demand, this property presents exceptional potential for builders or investors targeting Miami’s next wave of urban growth.
BRYANDALE PB 9-86 LOT 23 BLK 1 & N1/2 OF ALLEY LYG S & ADJ CLOSED PER ORD 13492 LOT SIZE 6300 SQ FT M/L COC 22179-2699 03 2004 1
City Location, Other, Sidewalk
Great development opportunity in Miami’s rapidly growing East Little Havana corridor, just minutes from Brickell, Coral Gables, and the Miami River. Architectural plans already completed for a 10-unit multifamily project featuring eight 3-bedroom units and two studios on a 6,300 SF lot with an existing home. Surrounded by ongoing new construction and strong rental demand, this property presents exceptional potential for builders or investors targeting Miami’s next wave of urban growth.
City:Miami,Zoning:3901,List A O R:A-Miami Association of REALTORS,Tax Year:2025,Latitude:25.7661596,List Price:829000,Listing Id:A11906280,Longitude:-80.2301491,Mls Status:Active,Utilities:1:Sewer Connected,2:Water Connected,3:Electricity Available,4:Sewer Available,5:Water Available,Current Use:1:Other Usage,Postal Code:33135,Street Name:7th St,Coordinates:1:25.7661596,Lot Features:1:Other,2:Sidewalk,Photos Count:6,Building Name:BRYANDALE,Days On Market:9,Lot Size Acres:0.145,Lot Size Units:Square Feet,M I A M I R E_ Area:41,M L S Area Major:Bryandale,On Market Date:2025-10-31,Parcel Number:01-41-03-020-0080,Property Type:Land/Boat Docks,Street Number:2146,Public Remarks:Great development opportunity in Miami’s rapidly growing East Little Havana corridor, just minutes from Brickell, Coral Gables, and the Miami River. Architectural plans already completed for a 10-unit multifamily project featuring eight 3-bedroom units and two studios on a 6,300 SF lot with an existing home. Surrounded by ongoing new construction and strong rental demand, this property presents exceptional potential for builders or investors targeting Miami’s next wave of urban growth.,County Or Parish:Miami-Dade County,Direction Faces:North,Expiration Date:2026-04-30,List Office Name:Capital Nest Realty, LLC,Standard Status:Active,Living Area Units:Square Feet,Major Change Type:Price Increase,Postal Code Plus4:3314,Property Sub Type:Residential,State Or Province:FL,Street Dir Prefix:SW,Subdivision Name:BRYANDALE,Tax Annual Amount:8728,Unparsed Address:2146 SW 7th St, Miami FL 33135,Listing Agreement:Exclusive Right To Sell,Building Area Units:Square Feet,Leasable Area Units:Square Feet,Lot Size Square Feet:6300,M I A M I R E_ Flood Zone:X,Original List Price:780000,Previous List Price:780000,Public Survey Range:41,I D X Participation Y N:1,M I A M I R E_ N A R Rules Y N:1,Showing Contact Type:1:Call Listing Office,Syndication Remarks:Great development opportunity in Miami’s rapidly growing East Little Havana corridor, just minutes from Brickell, Coral Gables, and the Miami River. Architectural plans already completed for a 10-unit multifamily project featuring eight 3-bedroom units and two studios on a 6,300 SF lot with an existing home. Surrounded by ongoing new construction and strong rental demand, this property presents exceptional potential for builders or investors targeting Miami’s next wave of urban growth.,Listing Contract Date:2025-10-31,Originating System I D:miamire,Public Survey Section:3,Showing Instructions:Call Listing Agent,Call Listing Office,Street Number Numeric:2146,Tax Legal Description:BRYANDALE PB 9-86 LOT 23 BLK 1 & N1/2 OF ALLEY LYG S & ADJ CLOSED PER ORD 13492 LOT SIZE 6300 SQ FT M/L COC 22179-2699 03 2004 1,M I A M I R E_ Current Price:829000,Public Survey Township:41,M I A M I R E_ Municipal Code:1,M I A M I R E_ Total Mortgage:180000,Originating System Name:Miami Association of REALTORS®,M I A M I R E_ Internet Remarks:Plans completed for 10-unit multifamily (8 three-bed, 2 studios) on 6,300 SF lot in East Little Havana near Brickell—prime investor location.,M I A M I R E_ Parcel Number M L X:0080,M I A M I R E_ Showing Time Flag:1,M I A M I R E_ Street View Param:1$25.766066$-80.230083$67.96$13.33$1.00$vOgcIxVDZuL604AJdaP-HQ,Contract Status Change Date:2025-10-31,Internet Address Display Y N:1,Internet Consumer Comment Y N:1,M I A M I R E_ Ok To Advertise List:No,M I A M I R E_ Subdivision Number:20,M I A M I R E_ Agent Alternate Phone:305-285-8801,Internet Entire Listing Display Y N:1,M I A M I R E_ Address Internet Display:2146 SW 7th St,Internet Automated Valuation Display Y N:1,
- Price $829,000.00
- Price Change: 2025-11-07
- Lot size sq. ft.
- Price per sq.ft. $
- Year Build
- Waterfront
- View
- Pool Yes
- Style
- Construction
- Parking Description
- Flooring Type
- Property Type Land/Boat Docks
- Status Active
- Listed 2025-11-07
- Days on Market 179
- Furnished
- City Miami
- Zip 33135
- State Florida
- Subdivision
- Development Name BRYANDALE
- HOA Fees
- Taxes 8728
- Taxes Year 2025
En
Ru
Es